Перейти к содержимому

  • Щомыслицкий с/с, АД Р1 "Брест-Минск",
    9-ый км, территория заправки А100
  • Режим работы
График работы

  • Понедельник
    9:00 – 17:30
  • Вторник
    9:00 – 17:30
  • Среда
    9:00 – 17:30
  • Четверг
    9:00 – 17:30
  • Пятница
    9:00 – 17:30
  • Суббота
    10:00 – 16:00
  • Воскресенье
    Выходной
  • Щомыслицкий с/с, АД Р1 "Брест-Минск",
    9-ый км, территория заправки А100

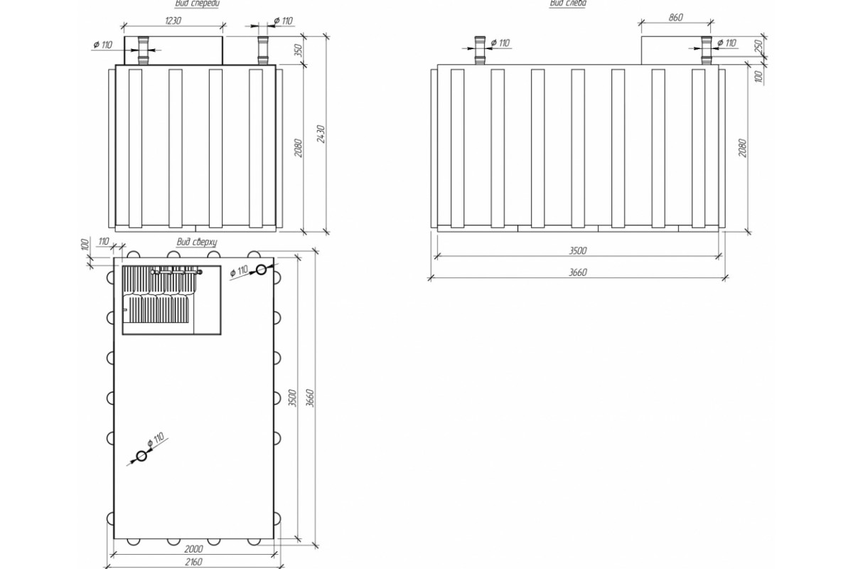
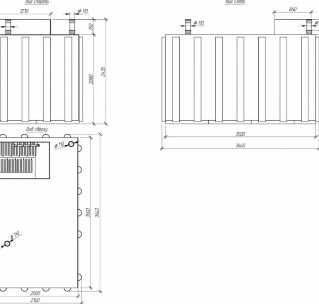
Пластиковый погреб Alta Pogreb 35

Код товара: 451-
Краткие характеристики
Общие характеристики
  • Размеры рабочей камеры, мм (Д х Ш х В)
    3500 × 2000 × 2000
  • Габариты (Длина × Ширина × Высота, мм)
    3660 × 2160 × 2430
  • Вес, кг
    710

Пластиковый погреб Alta Pogreb 35 подземный модуль для организации многофункционального, комфортного и безопасного подвального помещения для хранения продуктов.

В стандартную комплектацию входит:

  • стандартная крышка без утепления;
  • крепления - закладные элементы под полки;
  • самотечная вентиляция (без вентилятора).

Пластиковый погреб дополнительно оборудуется:

  • полками;
  • естественной и принудительной вентиляцией;
  • освещением;
  • лестница в комфортном исполнении;
  • крышкой люка с пассивным утеплением.

Преимущества Alta Pogreb 35

  • Надежный и герметичный.

Не нужно красить и грунтовать - пластиковый модуль не подвержен коррозии, срок службы погреба не менее 50 лет. 100% герметичность! Не пропускает грунтовую воду. Не нужна дополнительная гидроизоляция с водонапорной стороны, как для железобетонных конструкций.

  • Экологичный и удобный

Безвреден для продуктов и здоровья человека. Может быть оснащен эргономичной лестницей, закладными элементами для установки полок, освещением системой вентиляции, удобной горловиной и надежной системой интеграции в железобетонный фундамент.

  • Легкий, но прочный

Пластиковый Alta Pogreb легкий и технологичный, для монтажа требуется минимум строительной техники. Пластиковый Alta Pogreb при соблюдении рекомендаций по монтажу не уступает в прочности погребам из других материалов (металл, железобетон).

С радостью поможем с выбором!

Наш специалист бесплатно проконсультирует и подскажет оптимальные варианты

Полезные статьи

Долгое время центральной канализации не могли найти хорошую альтернативу, кроме выгребных ям, доставлявших массу неудобств. Ситуа…
Жизнь за городом – это не только чистый воздух и экологически чистые продукты, но и неудобства, связанные с отсутствием инженерны…
Неблагоприятная экологическая ситуация вынуждает жителей мегаполисов покидать городские квартиры и селиться за городом. Поэтому в…